
Aldo Rossi
House
Right
Van de eerste ochtendstraal tot het laatste avondlicht.
PERIODE
2025-2026LOCATIE
Dewittelaan 16, Oostduinkerke - GroenendijkSTATUS
Start bouw oktober 2025CONCEPT
Halfopen rechtsARCHITECT
Klarté architectenPRIJS ALDO ROSSI - RECHTS
1.895.000 €PRIJS ALDO ROSSI - LINKS
1.750.000 €Van de eerste ochtendstraal tot het laatste avondlicht.
Vlak bij het strand en de duinen, op de grens van Oostduinkerke en Nieuwpoort, waar de horizon opent en het licht steeds in beweging is, bieden we u bijzonder woonproject.
Twee halfopen gezinswoningen, sculpturaal en ingetogen, vormen samen een hedendaagse vertaling van het woonhuis — met een zachte knik naar Aldo Rossi’s tijdloze vormentaal. Hier is wonen meer dan een bestemming.
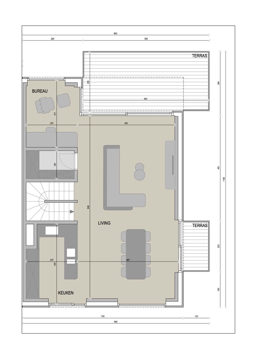
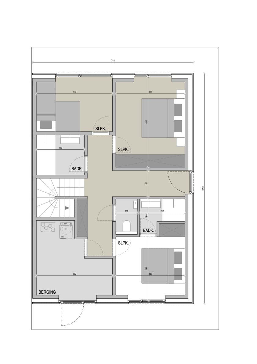
Bij het verlaten van uw prive terras betreedt u binnen de 5 min het terras van surfclub windekind. Indien u na het sporten of de aperitief een restaurant wenst te bezoeken, leidt het pittoreske Groenendijk je naar de Nieuwpoortse winkelstraat of het staketsel waar zeilboten hun weg zoeken tussen haven en zee. Elke woning omvat ongeveer 200m2 BVO en is ontworpen met een verticale logica.
De rechterwoning heeft een gerieflijke oprit voor een paar wagens en achteraan bevindt zicht het terras waar u, dankzij zuid-west Oriëntatie van de woning, de hele dag kna genieten van de zon.
Op het gelijkvloers bevinden zicht drie slaapkamers en twee badkamers, gericht op rust en geborgenheid, met direct toegang tot de privatieve tuinen terras.
De leefruimtes bevinden zicht op het eerste verdiep en zijn via de royale raampartijen, maximaal verbonden met de omringende natuur. Een geïntegreerde bureau ruimte speelt in op hedendaags woongebruik.
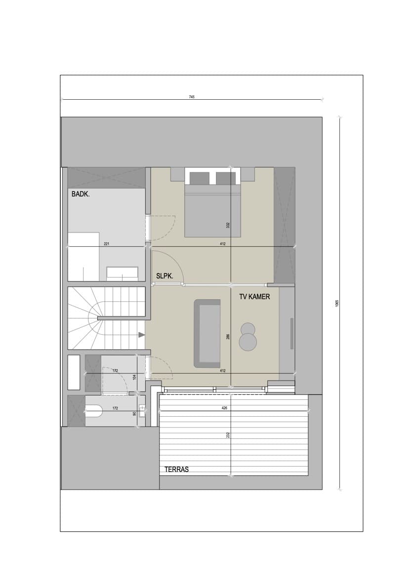
Het bovenste niveau herbergt een vierde slaapkamer, met aparte badkamer en toilet + een gezellige TV- Familie kamer – een plek onder het dak die doet denken aan de zolderkamers uit onze kindertijd, maar dan vertaald naar een moderne leefkwaliteit. Het plekje waar de kinderen na het eten op hun gemak een serie kunnen netflixen zonder de ouders te storen die aan tafel in alle rust wat wensen na te praten met hun tafelgenoten.
6% BTW op constructie
In het paasakkoord werd beslist dat de verkoop/levering van onroerende goederen na afbraak en heropbouw, mits voldaan aan de voorwaarden, opnieuw aan 6% kunnen plaatsvinden. Dit betreft de opeisbaarheid van de btw, in casu factuur en/of oplevering, na 1 juli 2025.





De vorm wordt verzacht door diepliggende gevelvlakken en expressieve raamkaders.

Het gebouw ontvouwt zich als een spel van lijnen en lagen:
twee gestapelde volumes, bekleed met een genuanceerde gevelsteen
die warmte en textuur brengt,
en zich moeiteloos verankert in het groen van de tuinarchitectuur van Buro Groen.
De heldere abstractie van de vorm wordt verzacht
door diepliggende gevelvlakken en expressieve raamkaders.
Zo ontstaat niet alleen een krachtig architecturaal gebaar,
maar ook een woning die met zorg omgaat met licht, zicht en privacy —
zoals een huis dat weet hoe het moet ademen in zijn omgeving.

Gelachen om verhalen die al honderd keer verteld zijn
Wie het strand laat voor wat het is, vindt achteraan een verstilde wereld.
Een ruim terras, badend in licht en omarmd door groen,
waar de dag langzaam tot stilstand komt,
en het leven zich in eenvoud toont.
Kinderen tekenen met krijt op warme terrastegels,
grootouders nippen van koffie onder het ritselende lover.
Er wordt gelezen in de schaduw van een boom,
gelachen om verhalen die al honderd keer verteld zijn,
fruit geplukt uit een schaal, gekoeld water doorgegeven.
’s Avonds vult de lucht zich met de geur van houtskool en zomer,
het gelach van vrienden en familie,
het zachte gekletter van borden op tafel,
en het fluisteren van bladeren die het duister verwelkomen.
Lichten ontwaken tussen struiken als kleine vuurvliegjes,
en boven de daken glijdt de avondzon
als een gouden sluier over alles wat even mag blijven duren.


Gelijkvloers Rechts - 3 slaapkamers

1°V Rechts - Leefruimte

2°V Rechts - 4° slpk + TV Ruimte


“L’architettura è il luogo della vita”
Aldo Rossi
De rechter woning. Een plek waar het dagelijkse leven – van ochtendzon tot avondgloed – zich voltrekt in harmonie met ruimte, licht en omgeving.
Architecturale visie
De woning, ontwopren door Klarté architecten, ademt een tijdloze, rationele architectuur uit die niet schreeuwt, maar wel karaktervol aanwezig is.
De klare belijning, de doorgedreven aandacht voor materialiteit en de wijze waarop binnen en buiten met elkaar vervlochten zijn, maken van dit project een toonbeeld van hedendaagse woonarchitectuur.
In lijn met de geest van Aldo Rossi wordt hier het huis opnieuw gedacht als archetype – stevig verankerd in zijn context en met een ingetogen monumentaliteit.
Interesse in Aldo Rossi House - Right










