
Aldo Rossi
House
Left
Waar de zee lonkt
en architectuur
tot rust komt
PERIODE
2025-2026LOCATIE
De Witte laan 16, Oostduinkerke - GroenendijkSTATUS
Pre-LaunchCONCEPT
Halfopen linksARCHITECT
Klarté architectenPRIJS ALDO ROSSI - LINKS
1.750.000 €PRIJS ALDO ROSSI - RECHTS
1.895.000 €Waar de zee lonkt en architectuur tot rust komt
Vlak bij het strand en de duinen, op de grens van Oostduinkerke en Nieuwpoort, waar de horizon opent en het licht steeds in beweging is, bieden we u bijzonder woonproject.
Twee halfopen gezinswoningen, sculpturaal en ingetogen, vormen samen een hedendaagse vertaling van het woonhuis — met een zachte knik naar Aldo Rossi’s tijdloze vormentaal. Hier is wonen meer dan een bestemming.
Bij het verlaten van uw prive terras betreedt u binnen de 5 min het terras van surfclub windekind. Indien u na het sporten of de aperitief een restaurant wenst te bezoeken, leidt het pittoreske Groenendijk je naar de Nieuwpoortse winkelstraat of het staketsel waar zeilboten hun weg zoeken tussen haven en zee. Elke woning omvat ongeveer 200m2 BVO en is ontworpen met een verticale logica.
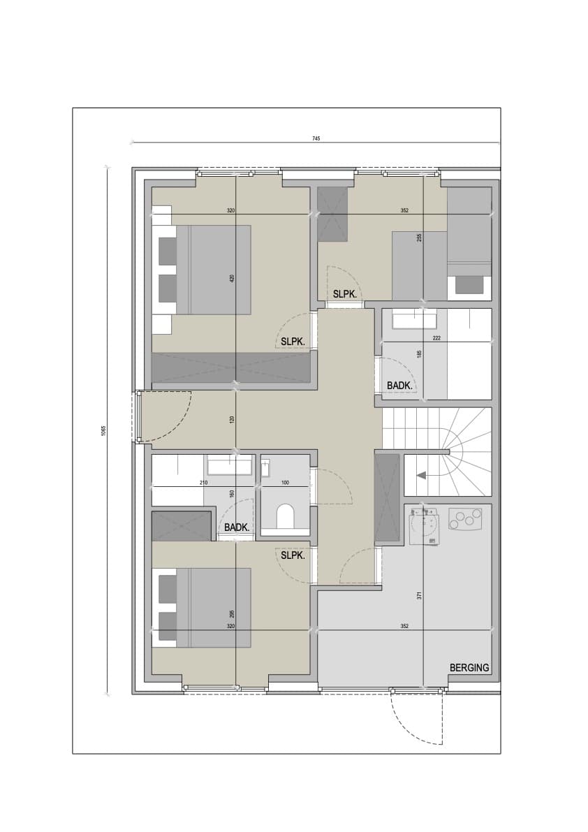
Op het gelijkvloers bevinden zicht drie slaapkamers en twee badkamers, gericht op rust en geborgenheid, met direct toegang tot de privatieve tuinen terras.
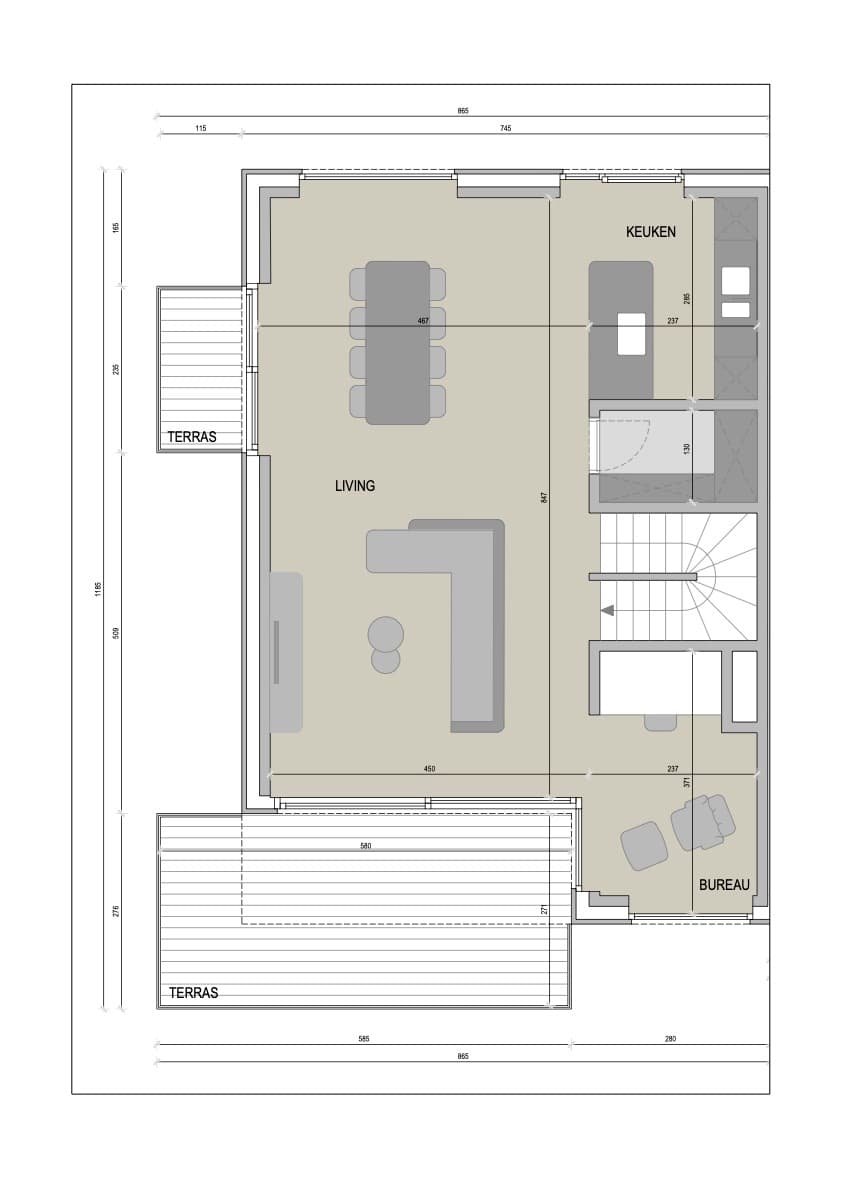
De leefruimtes bevinden zicht op het eerste verdiep en zijn via de royale raampartijen, maximaal verbonden met de omringende natuur. Een geïntegreerde bureau ruimte speelt in op hedendaags woongebruik.
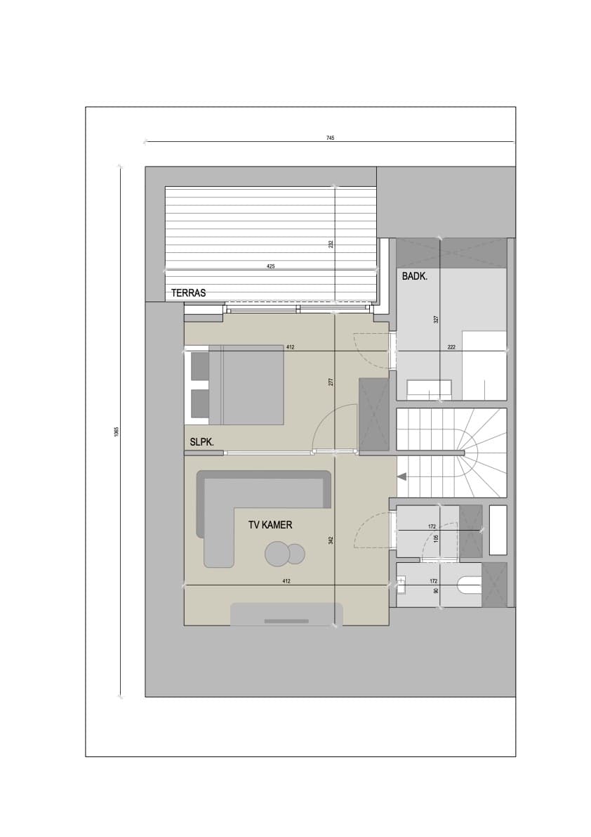
Het bovenste niveau herbergt een vierde slaapkamer, met aparte badkamer en toilet + een gezellige TV- Familie kamer – een plek onder het dak die doet denken aan de zolederkamers uit onze kindertijd, maar dan vertaald naar een moderne leefkwaliteit. Het plekje waar de kinderen na het eten op hun gemak een serie kunnen netflixen zonder de ouders te storen die aan tafel in alle rust wat wensen na te praten met hun tafelgenoten.
6% BTW op constructie
In het paasakkoord werd beslist dat de verkoop/levering van onroerende goederen na afbraak en heropbouw, mits voldaan aan de voorwaarden, opnieuw aan 6% kunnen plaatsvinden. Dit betreft de opeisbaarheid van de btw, in casu factuur en/of oplevering, na 1 juli 2025.





Gelijkvloers Rechts - 3 slaapkamers

1°V Rechts - Leefruimte

2°V Rechts - 4° slpk + TV Ruimte

Vlakbij het strand en windekind

Volume en materialiteit
Het gebouw ontvouwt zich als een spel van lijnen en lagen:
twee gestapelde volumes, bekleed met een genuanceerde gevelsteen
die warmte en textuur brengt,
en zich moeiteloos verankert in het groen van de tuinarchitectuur van Buro Groen.
De heldere abstractie van de vorm wordt verzacht
door diepliggende gevelvlakken en expressieve raamkaders.
Zo ontstaat niet alleen een krachtig architecturaal gebaar,
maar ook een woning die met zorg omgaat met licht, zicht en privacy —
zoals een huis dat weet hoe het moet ademen in zijn omgeving.

Een verstilde wereld, omringd door groen en vrienden.
Wie het strand laat voor wat het is, vindt achteraan een verstilde wereld.
Een ruim terras, badend in licht en omringd door groen,
waar de dag zachtjes vertraagt.
’s Avonds vult de lucht zich met de geur van houtskool en zomer,
het gelach van vrienden, het gefluister van bomen,
en het zachte schijnsel van lichten
die als vuurvliegjes tussen de struiken dansen




Interesse in Aldo Rossi House - Left










