
Res.
Josef
Albers
Harmonie
van licht, lijn
en leefkwaliteit
CONCEPT
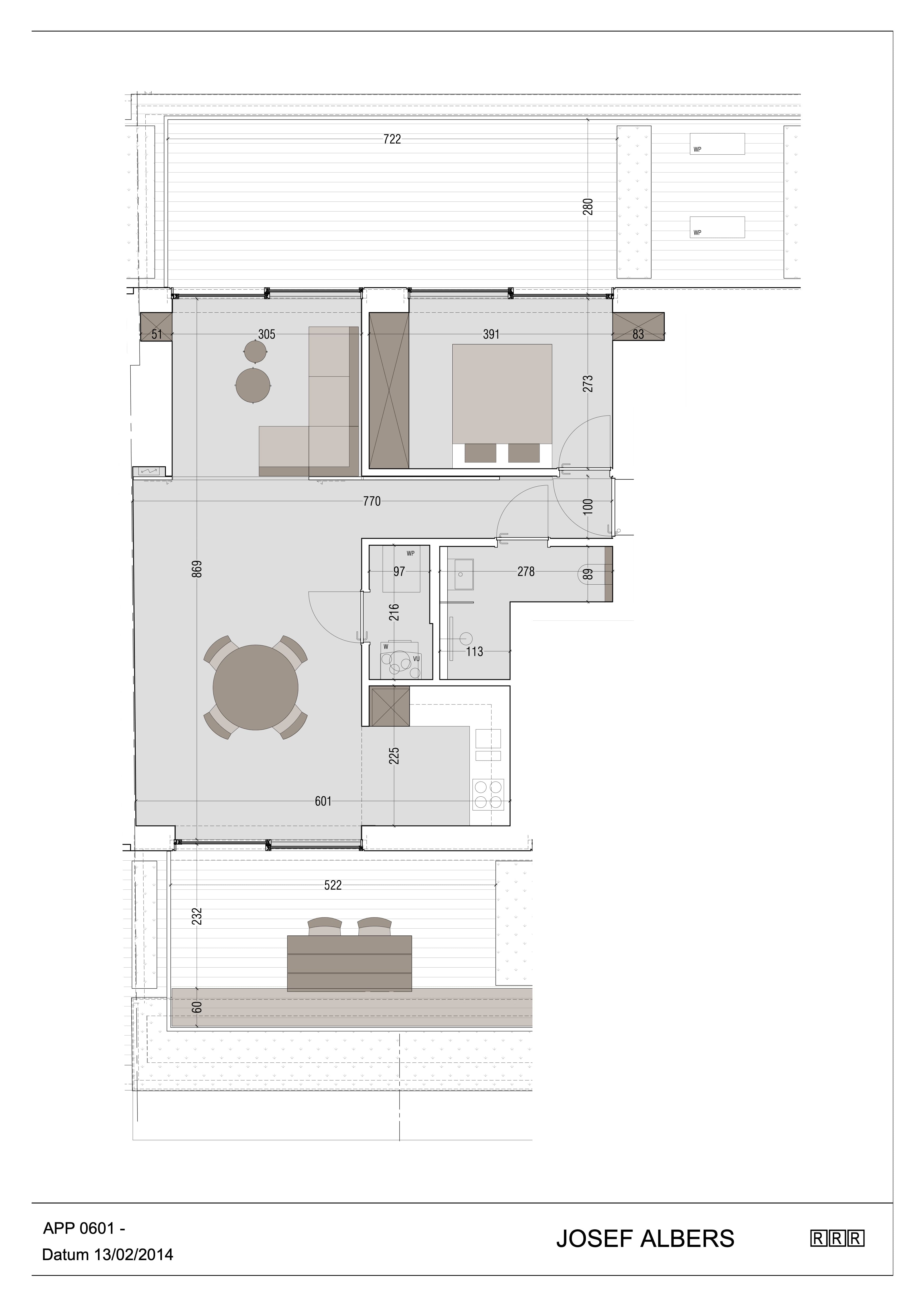
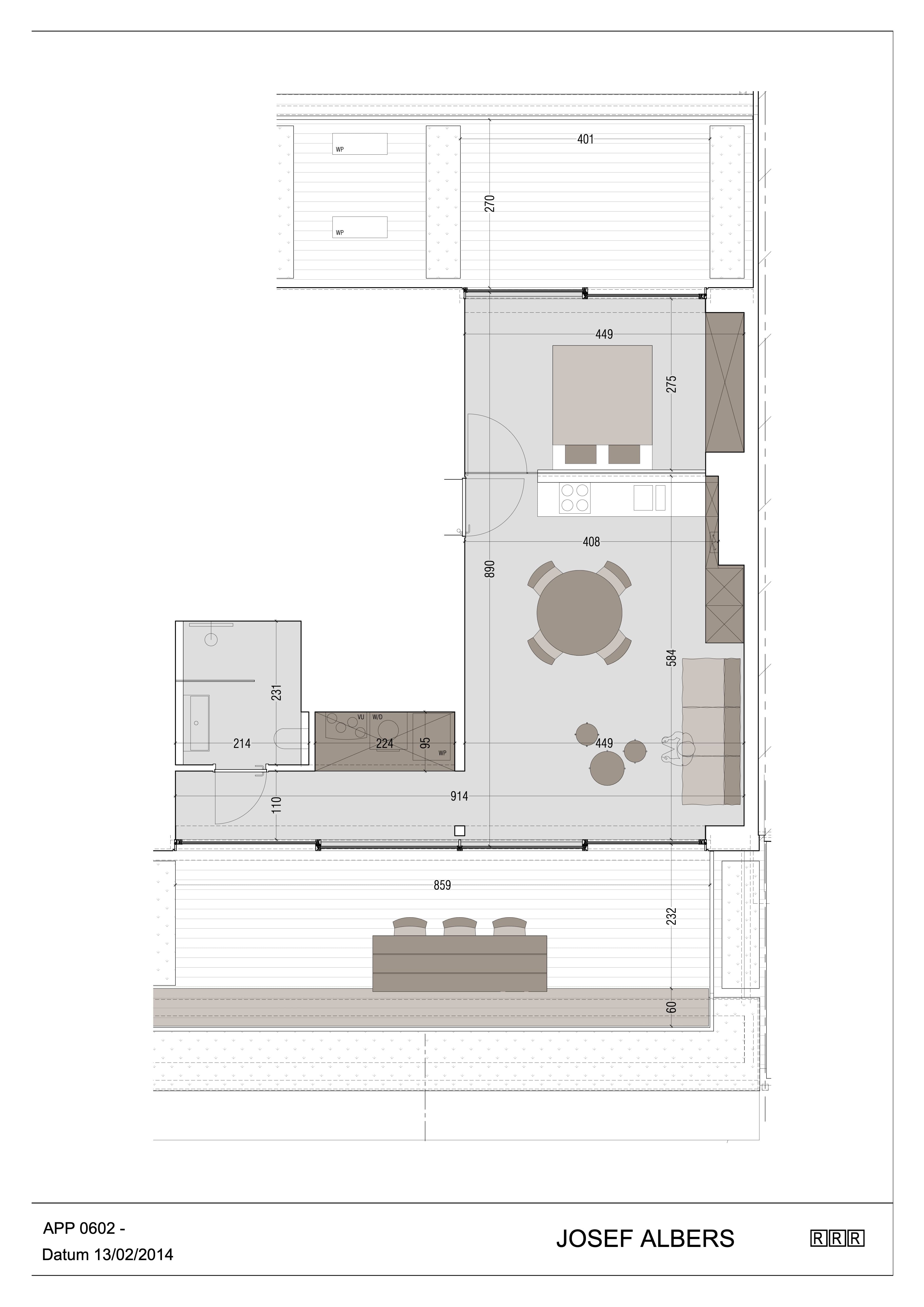
15 appartementen en 2 penthousesPERIODE
2025LOCATIE
Oostduinkerke BadARCHITECT
Element architectenDeze residentie vindt u aan de Albert-I laan 91 in Oostduinkerke-Bad en heeft een Zuid-Oost oriëntatie. Uit de wind, zeer zonnig en net om het hoekje bent u aan de dijk en het strand van Oostduinkerke.
Een harmonie van licht, lijn en leefkwaliteit
Residentie Josef Albers, ontworpen door Element Architecten, onderscheidt zich door zijn heldere vormentaal en doordachte architectuur. Strakke lijnen worden verzacht door speelse accenten, en elk detail getuigt van zorg en vakmanschap.
De inkom vormt een ogenschijnlijk gesloten sculptuur, die bij het betreden opent in een verrassend lichtspel. Gefilterd daglicht stroomt binnen en creëert een serene, bijna contemplatieve sfeer. De overgang van buiten naar binnen is geen grens, maar een beleving.
Twee exclusieve penthouses met zon van ’s morgens tot ’s avonds
De bovenste verdieping van de residentie is ingedeeld in twee unieke penthouses: een met één slaapkamer en een met twee slaapkamers. Beide beschikken over zeer ruime terrassen aan zowel de voor- als achterzijde, zodat u op elk moment van de dag van de zon kunt genieten – van het eerste ochtendlicht tot de laatste avondstralen.
Een zeldzame combinatie van privacy, ruimte en licht, hoog boven het straatbeeld.


















Kleur in de ruimte
Kleur als onderdeel van architectuur
Josef Albers was een Duitse kunstenaar en docent die bekend staat om zijn werk rond kleur en vorm. Hij deed onderzoek naar de relaties tussen kleuren en de invloed van kleuren op onze waarneming van de wereld. Zijn aanzienlijke invloed op de moderne architectuur zien we vooral terug in zijn concept van “kleur in de ruimte”. Hij geloofde dat kleur niet alleen een oppervlakkige bijdrage had, maar ook een fysieke aanwezigheid kon hebben in de architectuur.
Dankzij Josef Albers beschouwen we kleur niet langer als decoratie, maar als een integraal onderdeel van architectonische ontwerpen. Moderne architecten namen dit idee over en en experimenteren nu volop met kleur in de ruimte. Bijvoorbeeld met gekleurde ramen, wanden en plafonds, toegevoegde gekleurde accenten in ontwerpen van interieurs. Vandaag de dag is Albers’ visie nog relevant en een inspiratie voor vele architecten. Zijn invloed is zichtbaar in talloze moderne architecturale projecten wereldwijd.
In deze nieuwe residentie is het groene accent in de ramen en de ontvangst een belangrijk onderdeel van de architectuur. Helemaal in lijn met Josef’s visie en een perfect eerbetoon aan deze pionier.






Zuid gericht = zon gericht
De voorgevel geeft zicht op de leefruimtes die op het zuiden zijn gericht. Deze ruimtes hebben deels inpandige terrassen en daarmee een optimale lichtinval.
Materialisatie
We kozen voor materiaal met een fijne grijze bezetting, geflankeerd door olijfkleurige ramen en borstweringen. Deze elementen verstoren de openheid naar de leefruimtes nauwelijks en dragen met hun details bij aan een elegant geheel.
Het gelijkvloerse deel vormt een mooi contrast met het handelsgedeelte, dat rijk is aan ramen, en met de toegang naar het private gedeelte. Daar is de beglaasde ontvangsthal weggewerkt achter geperforeerde platen die een mooi visueel filter vormen voor het straatbeeld. Op de hogere bouwlagen van de achterkant vinden we dezelfde materialen, details en openheid van de voorgevel.

Op een schelpworp van het strand
Ligging
Residentie Josef Albers heeft een zeer centrale ligging in Oostduinkerke-Bad en is gesitueerd in de Albert-I Laan 91.
In de directe omgeving van deze appartementen vindt u onder andere talloze leuke restaurant en geweldige bakkers. Wandel de hoek om en u kijkt uit over het mooiste en meest uitgestrekte strand van de Belgische kust!
Interieur
Het interieur van residentie Josef Albers ademt dezelfde elegantie als het exterieur. Beide zijn het resultaat van de hoge kwaliteitsvereisten die Rietveld ontwikkelingen kenmerken.
Laat uw ogen strelen door de plafondhoge deuren en de natuurlijke en hoogwaardige materialen. Van eiken parket tot volledige uitgeruste keuken van sistem.be, badkamers met Duravit sanitair en inloopdouches tot aan de camerabewaking; aan alles is gedacht en maximale aandacht geschonken. Alles staat in dienst van wooncomfort en de rust die zo karakteristiek is voor sublieme architectuur.




Architectuur
Element Architecten
Element Architecten is een bureau voor hedendaagse architectuur onder leiding van Mattias Verschueren en Joris De Schepper. Hun architectonische eenvoud en keuze voor eerlijke materialen zorgen voor hedendaagse realisaties die zich op geen enkele wijze opdringen aan hun omgeving, maar juist de balans versterken. Zo tracht Element Architecten trends te overstijgen en een tijdloos geheel te creëren.
Elk ontwerp start met een grondige analyse van de wensen van de opdrachtgever, de regelgeving en de context Daarbij vragen ze zich bij alles of hoe ze niet het nieuwste maar het beste voorstel kunnen formuleren. Vanuit een sterk concept verfijnen ze het ontwerp naar een zuivere planopbouw met een optimale ruimtelijke beleving. Een juiste materialisatie en een doorgedreven detaillering zorgen steeds voor een uniek eindresultaat.
Interesse in Residentie Josef Albers?









